Skip To Content

97 Long Hill Drive

Clifton, NJ 07013
  • $498,000
  • STATUS: Active Under Contract
  • ON SITE: 35 Days
  • MLS #: 26000191
Under Contract
UPDATED: 38 min ago
$498,000
  • 4
    BEDS
  • N/A
    ACRES
  • 2
    BATHS
  • 0
    1/2 BATHS
Neighborhood:
Type:
Single-Family Home
Built:
1950
County:
Area:

School Information

Elementary School:
Middle School:
High School:

Description

Welcome home to this elegant and inviting residence nestled in the desirable Maple Valley section of Clifton. This beautifully maintained home offers 4 spacious bedrooms and 2 full bathrooms, featuring an updated kitchen, central air conditioning, and a charming wood-burning stove that adds warmth and character. The home also includes a finished basement with convenient access from the backyard, ideal for additional living or entertaining space. Outdoors, enjoy a long private driveway leading to a detached garage, along with a fenced backyard perfect for refined outdoor entertaining, complete with an above-ground pool to enjoy during the summer months. Conveniently located near NYC transportation, shopping, malls, supermarkets, parks, schools, and houses of worship. Schedule your private showing—this is a must-see home, not a drive-by.

Monthly Payment Calculator



© 2026 New Jersey Multiple Listing Service. All rights reserved. IDX information is provided exclusively for consumers' personal, non-commercial use and may not be used for any purpose other than to identify prospective properties consumers may be interested in purchasing. Information is deemed reliable but is not guaranteed accurate by the MLS or Corcoran Baer & McIntosh. The data relating to the real estate for sale on this web site comes in part from the Internet Data Exchange Program of the NJMLS. Real estate listings held by brokerage firms other than Corcoran Baer & McIntosh are marked with the Internet Data Exchange logo and information about them includes the name of the listing brokers. Some properties listed with the participating brokers do not appear on this website at the request of the seller. Listings of brokers that do not participate in Internet Data Exchange do not appear on this website. Data last updated: 2026-02-07T15:16:20.873.
www.baerhomes.com/homes/171687284
Print Image

97 Long Hill Drive Clifton, NJ 07013

  • Price: $498,000
  • Status: Active Under Contract
  • On Site: 35 Days
  • Updated: 38 min ago
  • MLS #: 26000191
4
Beds
2
Baths
0
½ Baths
N/A
Acres
1950
Built
Neighborhood:
Clifton
County:
Passaic
Area:
Clifton
Elementary School:
School 2
Middle School:
Maple Valley
High School:
Clifton Hs
Property Description
Welcome home to this elegant and inviting residence nestled in the desirable Maple Valley section of Clifton. This beautifully maintained home offers 4 spacious bedrooms and 2 full bathrooms, featuring an updated kitchen, central air conditioning, and a charming wood-burning stove that adds warmth and character. The home also includes a finished basement with convenient access from the backyard, ideal for additional living or entertaining space. Outdoors, enjoy a long private driveway leading to a detached garage, along with a fenced backyard perfect for refined outdoor entertaining, complete with an above-ground pool to enjoy during the summer months. Conveniently located near NYC transportation, shopping, malls, supermarkets, parks, schools, and houses of worship. Schedule your private showing—this is a must-see home, not a drive-by.
Exterior Features

Construction Materials Vinyl Siding Other Parking Detached Pool Features Above Ground Sub Style Additional None

Interior Features

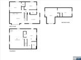
Basement FinishedFullGrd Lv Acces Basement Remarks Finished BasementWood burning FPBathroomLaundrystorage Cooling Central Air Fireplace Features 1 Fireplace Heating Natural GasForced Air Rooms Total 7

Property Features

Association None Flood Plain None For Sale Or Lease S Lifestyle Close/ParksClose/SchoolClose/ShopgClose/TransClose/Wrshp Lot Features Regular Miscellaneous None Ownership Private Property Sub Type Single Family Residence Property Sub Type Additional Other Tax Annual Amount 9301 View None Waterfront Features None Year Built Details 1950'sBuild Prior to 1978

Listing provided by Marilou Wong of Century 21 Gemini Realty, Upper Montclair: 973-744-2700.


© 2026 New Jersey Multiple Listing Service. All rights reserved. IDX information is provided exclusively for consumers' personal, non-commercial use and may not be used for any purpose other than to identify prospective properties consumers may be interested in purchasing. Information is deemed reliable but is not guaranteed accurate by the MLS or Corcoran Baer & McIntosh. The data relating to the real estate for sale on this web site comes in part from the Internet Data Exchange Program of the NJMLS. Real estate listings held by brokerage firms other than Corcoran Baer & McIntosh are marked with the Internet Data Exchange logo and information about them includes the name of the listing brokers. Some properties listed with the participating brokers do not appear on this website at the request of the seller. Listings of brokers that do not participate in Internet Data Exchange do not appear on this website. Data last updated: 2026-02-07T15:16:20.873.
 
https://bt-photos.global.ssl.fastly.net/njmls/orig_boomver_1_26000191-1.jpg https://bt-photos.global.ssl.fastly.net/njmls/orig_boomver_1_26000191-1.jpg https://bt-photos.global.ssl.fastly.net/njmls/orig_boomver_1_26000191-1.jpg
Logo
Corcoran Baer & McIntosh
97 South Broadway
South Nyack NY, 10960